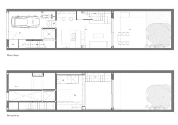
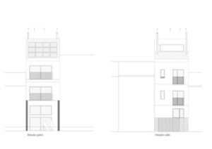
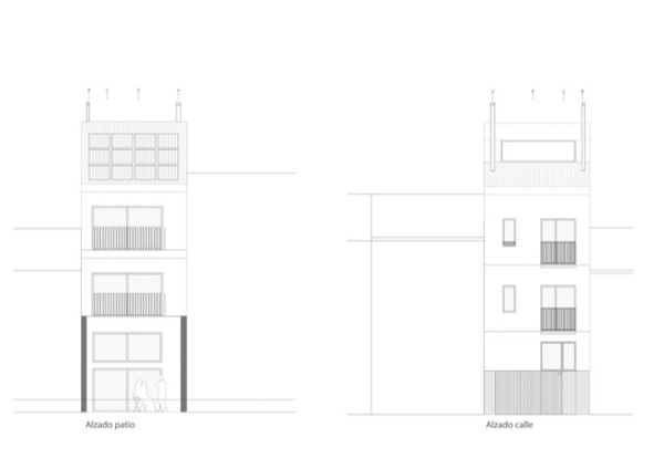
Terreno en venta en calle de Sant Onofre, Vilanova i la Geltrú

Reset password

Ingrese su dirección de correo electrónico y le enviaremos un enlace para cambiar su contraseña.

Comience con su cuenta

para guardar tus casas favoritas y más

Ingresa con e-mail

Comience con su cuenta

para guardar tus casas favoritas y más

Al hacer clic en el botón «INSCRIBIRSE», acepta los Condiciones de uso y Política de privacidad
Powered by Estatik